Hi, How Can We Help You?
0 368 335 64 20
emektugla@gmail.com
Kastamonu Yolu 5. Km Osman Köyü Mevkii Boyabat / Sinop
Teklif Al
İstanbul Tuğla -
Hemen Arayın!
0 368 335 64 20
Toggle menu
Kurumsal
Belgeler
Ürünlerimiz
8,5’luk Tuğla
10’luk Tuğla
13,5’luk Tuğla
15’lik Tuğla
Yığma Tuğla
Harman Tuğla
20’lik Asmolen
23’lük Asmolen
25’lik Asmolen
Kalorifer Baca Tuğlası
Kare Baca Tuğla
Şönt Baca Tuğla
Delikli Yuvarlak Baca Tuğlası
Yuvarlak Baca Tuğlası
Blog
Multimedya
İletişim
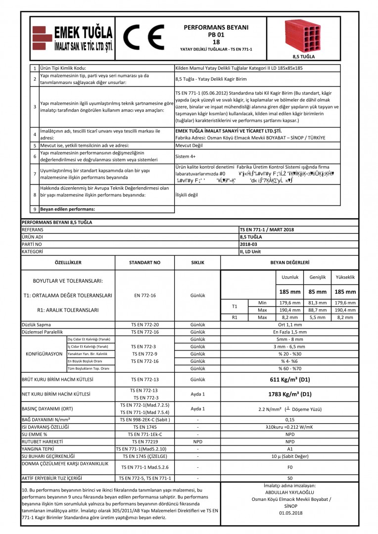
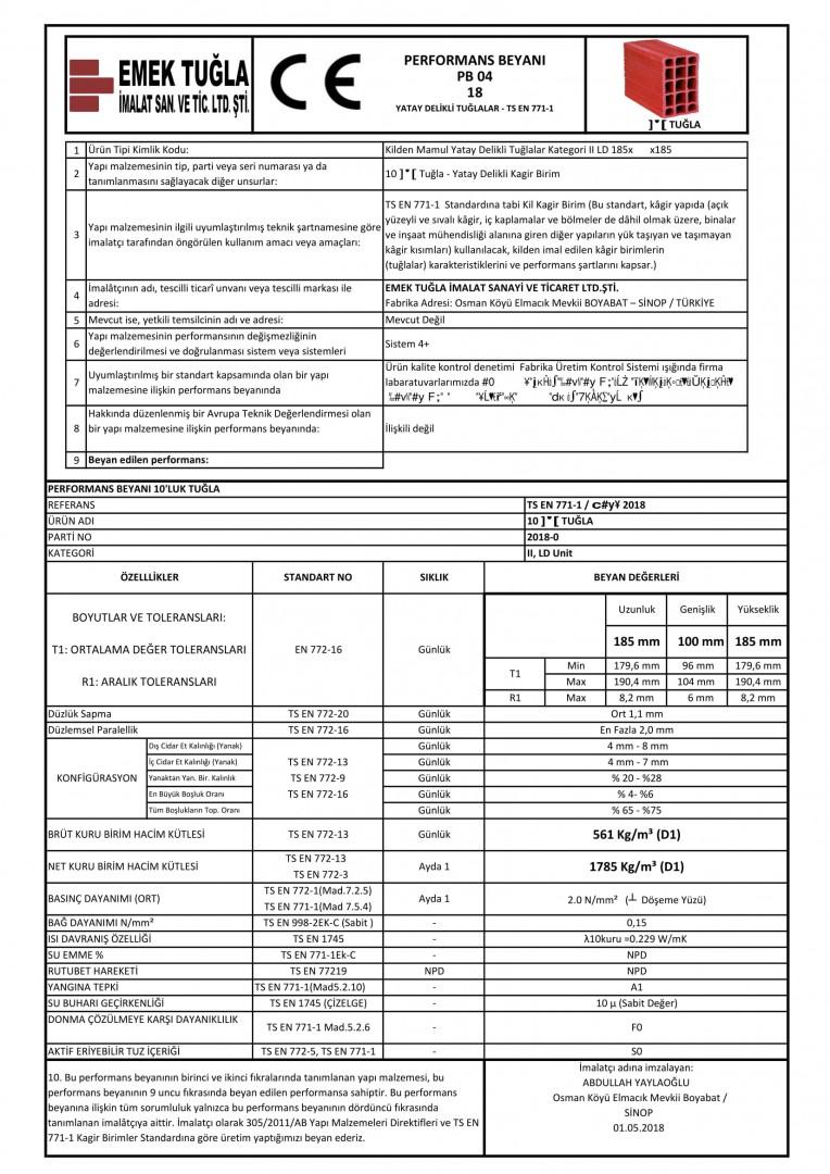
Belgeler
Belgeler